技術資料動力鎖選擇和程序
如果您想查看選擇程序和註意事項,請轉到以下步驟。
如果您希望縮小產品系列範圍或進行初步選擇,
單擊此處。
如果您已經決定了使用條件並希望進行詳細的選擇,
單擊此處。
選擇EF系列
1.確認最大發生扭矩和最大發生推力負荷
最大扭力和推力負載的計算需要使用係數傳動能力。
※連接伺服電機、步進電機時,請將各自的最大扭矩 (峰值扭矩) 作為最大發生扭矩 (Tmax) 。
| SI單位 |
|---|
|
Tmax = 9550 × H n ・f Tmax=最大發生扭矩 (N・m)
|
| 重力單位 |
|---|
|
Tmax = 974 × H n ・f Tmax=最大發生扭矩 (kgf・m)
|
Pmax = Pax・f
- Pmax:最大產生推力負荷kN{kgf}
- Pax:推力負荷kN{kgf}
- f:使用係數
f:使用係數
| 負載狀態 | 使用係數 | |
|---|---|---|
| 平穩無衝擊負載 | 慣性小 | 1.5~2.5 |
| 輕微衝擊負載 | 慣性中 | 2.0~4.0 |
| 大衝擊負載 | 慣性大 | 3.0~5.0 |
僅施加扭矩時
比較由以上求得的Tmax和編目傳輸扭矩M t。
M t ≥Tmax→可用。
Mt < Tmax → 考慮增加模型編號。
同時施加扭矩和推力負荷時
計算合成負荷M R,並與傳遞扭矩M t進行比較。
MR = Tmax2 + (Pmax × d 2 )2
- Tmax:最大發生扭矩N・m{kgf・m}
- Pmax:最大發生止推負荷N{kgf}
- d:軸徑m
比較由以上求得的M R和編目傳遞扭矩M t。
M t ≥M R →可以使用。
M t < M R → 考慮增加模型編號。
*本系列不能多個使用。
2.考慮軸和輪轂
(1) 材料強度的探討
軸和輪轂在緊固過程中受到較大的表面壓力。軸及輪轂請使用具有滿足下式的強度的材質。
σ0.2S≧ 1.2 × P σ0.2B≧ 1.2 × P'
- P:軸側面壓MPa{kgf/mm 2}
- P':輪轂側壓力 MPa{kgf/mm2}
- σ 0.2S:使用軸材料的屈服點應力MPa{kgf/mm 2}
- σ 0.2B:使用輪轂材料的屈服點應力MPa{kgf/mm2}
鋼材料強度一覽表中列出了典型鋼材料的屈服點值,請參閱。
(2)考慮輪毂外徑
請參閱 EF 系列主要規格頁面。
對於表格中未列出的材料,請使用以下公式計算所需的輪毂外徑。
輪毂外徑D N ≧ D σ0.2B + K 3 ・P' σ0.2B- K 3 ・P' + d G
- DN:輪毂外徑(mm)
- D:輪毂孔徑(mm)
- P':輪轂側壓力 MPa{kgf/mm2}
- σ 0.2B:使用輪轂材料的屈服點應力MPa{kgf/mm2}
- d G:緊固螺栓公稱直徑
- K3:輪毂形狀係數(請參考各產品的主要規格頁。)
(3) 空心軸內徑的探討
空心軸內徑請用下式計算。
空心軸內徑d B ≦ d × σ0.2S- 2・P・K 3 σ0.2S
- d B:空心軸內徑mm
- d:軸徑mm
- P:軸側面壓MPa{kgf/mm 2}
- σ0.2S:使用軸材料的屈服點應力MPa{kgf/mm 2}
- K3:輪毂形狀係數(請參考各產品的主要規格頁。)
3.徑向載荷
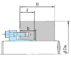
當徑向負荷作用於動力鎖(例如在皮帶傳動中)時,請使用下列公式計算徑向負荷在軸側和輪轂側產生的表面壓力 Prad 和 P'rad。將軸側和輪轂側的表面壓力與產品目錄中列出的表面壓力進行比較,以確保它們在表 3 所示的允許值範圍內。
Prad = 1.3 × Pr d × ℓ
P'rad = 1.3 × Pr D × ℓ
- Pr:徑向負荷N{kgf}
- l:輪轂與外圈的接觸面寬度 mm
- d:軸徑mm
- D:輪毂孔徑(mm)
- P:軸側面壓MPa{kgf/mm 2}
- P':輪轂側壓力 MPa{kgf/mm2}
要計算施加這種徑向負荷時所需的輪毂外徑Dn 和空心軸內徑 dB,分別將 Prad 和 P'rad 加到 P 和 P' 上。
| 系列 | Prad(P'rad)/P(P') |
|---|---|
| EF | 20%以下 |
