技術資料 直線作動機 千斤頂 技術資料
容許失穩載荷
- ·用於壓縮載荷時,請根據此圖表確定失穩載荷的千斤頂編號。
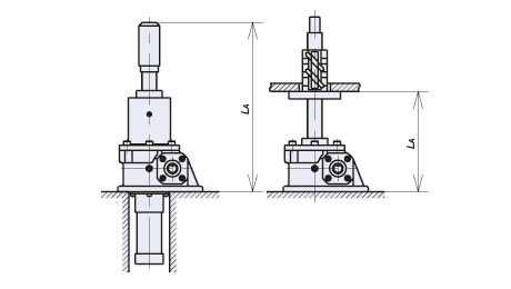
失穩選定圖表是估計失穩安全率Sf=4的圖表。- (1)請從下圖A、C安裝狀態中選擇作用點間距離LA、LC。
(下圖的安裝狀態以外請參照這裡) - (2)請根據1臺千斤頂的負荷W (縱軸) 與作用點間距離 (橫軸) 的交點選擇千斤頂的框號。
- (1)請從下圖A、C安裝狀態中選擇作用點間距離LA、LC。
- ·請勿施加橫向負荷。
以下所示的失穩選定圖形未考慮橫向負荷。 - ·作為安裝狀態,如果在裝置上下功夫,使螺絲軸成為拉伸負荷,就不會彎曲,也很經濟。
A座固定單軸端自由
C座固定單軸端支撐/固定
| 作用點間距離L A mm | 作用點間距離L C mm | |
|---|---|---|
| J.W.B. (滾珠絲桿螺桿式) |
![]() 單擊放大 |
![]() 單擊放大 |
| J.W.H. (高導程滾珠絲桿) |
- | ![]() 單擊放大 |
| J.W.M. (梯形螺桿型) |
![]() 單擊放大 |
![]() 單擊放大 |
- 註)
- 1.該圖的----線顯示的是,負荷W78.4kN{8tf}、(失穩安全係數Sf=4) 時,安裝狀態C的作用點間距離為300mm的示例。
此時,可選擇滿足縱軸、橫軸交點的千斤頂JWB100/JWM100。 - 2.如需詳細討論,請查看計算 (此處) 。





