技術資料直線作動機電動缸
Eco-Series、伺服型伺服電機安裝順序 (客戶自行安裝時)
直接連接電機時
請準備伺服電機。(輸出軸也可使用無鍵槽、帶鍵槽的款式。)
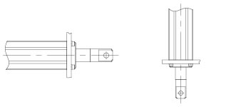
安裝馬達時,應使馬達法蘭上的聯軸器安裝孔朝上(僅限 45 和 105 mm機架)。
電機軸的銹和灰塵、防銹油等,請擦幹淨。
鬆開聯軸器的夾緊螺栓。
從聯軸器殼體上取下塞子,轉動輸入軸,使聯軸器夾緊螺栓的頭部與塞子孔對齊。
*對於 LPES30,扭力扳手必須按下圖所示的角度插入。
將馬達軸平穩地插入聯軸器中。
*當馬達沿旋轉方向旋轉時,與夾緊螺栓的相位可能會改變。
請註意不要傾斜電機軸插入。
將內側部分完全插入後,請用電機安裝螺栓進行安裝。
使用扭力扳手將聯軸器的夾緊螺栓鎖緊至規定的鎖緊扭力。
將拆下的插頭連接到聯軸器殼體。
*詳情請參閱使用使用說明書。
| 型號 | 聯軸器 螺栓尺寸 |
擰緊扭矩 N・m{kgf・m} |
L尺寸 mm |
|---|---|---|---|
| LPES15 | M2 | 0.5{0.04} | 30 |
| LPES30 | M2.5 | 1.0{0.10} | 40 |
| LPES150 | M4 | 3.8{0.39} | 60 |
| LPES300 | 70 | ||
| LPES1500 | M6 | 12{1.22} | 90 |
附精密行星減速機
1.電機軸為圓軸時
安裝減速機時,應使馬達安裝面朝上。
電機軸的銹和灰塵、防銹油等,請擦幹淨。
取下適配器部分的插頭,旋轉輸入軸,將螺栓的頭部對準插孔的位置。
請通過六角桿扳手等確認固定螺栓是否松動。
請將電機軸順利插入輸入軸孔。此時,如果將電機軸傾斜插入,則會與軸孔發生摩擦,無法正確安裝,請充分註意。
內部部分完全插入後,以適當的擰緊扭矩將電機完全固定在適配器上。
請用扭矩扳手等用下表所示的擰緊扭矩擰緊輸入軸的固定螺栓。此時,如果擰緊扭矩小於規定的擰緊扭矩,可能會因固定螺栓松動導衹電機軸打滑等故障,請充分註意。請勿在固定螺栓上塗抹鎖緊等防松材料。有可能得不到適當的緊固扭矩而導衹緊固不足。
請裝上插頭。以上完成電機的安裝。
緊固螺栓
如果發生意外衝擊,則假定夾具接合部滑動。升降驅動等時,請另行考慮安全機構。
夾緊螺栓擰緊力矩表
| 螺栓尺寸 | M3 | M4 | M5 | M6 | M8 | M10 |
|---|---|---|---|---|---|---|
| 擰緊扭矩 N・m{kgf・m} |
1.9 {0.18} |
4.3 {0.44} |
8.7 {0.89} |
15 {1.50} |
36 {3.70} |
71 {7.20} |
*螺栓的擰緊扭矩請在上述數值×1.0~1.2的範圍內。
電機安裝螺栓緊固扭矩表
| 螺栓尺寸 | M3 | M4 | M5 | M6 | M8 |
|---|---|---|---|---|---|
| 擰緊扭矩 N・m{kgf・m} |
1.1 {0.11} |
2.5 {0.26} |
5.1 {0.52} |
8.7 {0.89} |
21 {2.10} |
*螺栓的擰緊扭矩請在上述數值×1.0~1.2的範圍內。
2.帶鍵電動機的安裝
帶鍵的電機軸,取下鍵後與圓軸一樣可作為夾緊型使用。
電機軸鍵槽 (D型切口)、各狹縫、固定螺栓請固定在右圖所示的位置。
對於其他部件,請按照與圓軸相同的步驟將其連接到減速機。
選擇註意事項 (Eco系列伺服類型)
- ·本氣缸未設置止轉機構。桿隨推力產生旋轉力,請務必在對方裝置側防止旋轉。
最大推力時桿產生的旋轉力如下表所示。型號 LPES15 LPES30 LPES150 LPES300 LPES1500 桿旋轉力
N・m{kgf・m}0.16{0.016} 0.32{0.031} 1.60{0.16} 3.19{0.33} 26.6{2.72} - ·本氣缸在氣缸主體上未設置負荷保持機構。停止時及發生產品故障時,可以預想到危險狀態時,請使用附帶電磁制動的伺服電機保持負荷,或在外部設置制動機構。如果在升降裝置上使用或水平使用時出現錯位問題,也是如此。
- ・電動缸設計用於室內。為避免生鏽等問題,請將其存放在良好的室內環境中。注意濕度。將其安裝在溫度變化劇烈的地方會導致冷凝,可能導致故障或生鏽,因此請務必小心。
- ·請勿在腐蝕性環境中存放或使用。此外,不能在易燃性環境下使用。
- ·請勿在密閉容器內等無法散熱的場所使用,否則可能會導衹故障。
安裝註意事項 (Eco系列伺服類型)
- - 使用耳軸安裝或法蘭安裝(僅適用於 LPES150 及以下型號)來安裝主體。
如果產品會受到擺動影響,請選擇工字形或U型端先端金具先端金具如果施加側向負荷,請安裝導向裝置以防止直接側向負荷或彎矩。 - ·使用耳軸安裝時,可水平或垂直安裝。
- ·使用法蘭安裝時,請垂直安裝。(參照右圖)
※使用LPES300以上款式時,請咨詢本公司。
※附防塵罩時無法安裝法蘭。 - ·在氣缸無擺動、靜止的狀態下使用時,請選擇 (1) 法蘭固定 (2) 耳軸固定+腳固定。可水平或垂直安裝。(僅限□ 45幀)
- - 使用長行程水平放置時,請如圖所示單獨支撐框架的底部。
在這種情況下,不要固定框架和支撐底座。

框架前端支撐
(無法固定)
耳軸支架
法蘭安裝
(1)法蘭安裝
(2)耳軸安裝+腳架安裝
使用說明 (Eco系列伺服類型)
- ・此汽缸本體未內建過載保護機制,因此請在伺服驅動器(伺服放大器)中提供過載、過流和過壓保護。此外,請確保與電動缸連接的設備能夠承受伺服馬達的最大扭力。
- ·本氣缸在結構上未設置手動操作軸,調整氣缸位置時,請以微速通過伺服驅動器 (伺服放大器) 操作進行。
- • 此汽缸的螺旋軸在出廠時塗上Daphne Eponex SR No. 2,但仍需定期潤滑。
潤滑脂的加脂周期請參照右表。
潤滑脂的塗佈量為每100mm行程10~15g。
另外,本公司備有JWGS100G作為保養用潤滑脂 (另售) 。
(請參閱此處。)※為了防止油膜斷裂,請配合加脂周期在桿外周面塗上潤滑脂。
請使用與螺絲相同的潤滑脂。※關於加脂周期,請根據使用狀況判斷。
使用頻率 加脂迴圈 1001往返/天以上~ 每1至3個月 每天往返501~1000次 每3至6個月 每天往返101~500次 6個月至每年 ~100次/天以下 每1年至1.5年
非常適合維護千斤頂和電動缸!
(100g裝)
形番:JWGS100G
